The Mews House, Number 60

Clifton , Bristol, BS8 3HX Directions and opening times

  • £1,500,000
  • 4
     bedrooms
  • 2
     bathrooms

The Clifton Collection The Mews House, Number 60

Jump to:

Development Jump Navigation

Image
Clifton Collection, The Regency Mews, External CGI

Clifton Collection, The Regency Mews, External CGI

Created for Living

The Mews House, Number 60

One of just seven architecturally designed homes in Clifton’s historic conservation area. This 4-bedroom, 3-storey home offers 1,794 sq ft of modern living space, perfect for growing families.

Property Highlights

  • Crafted with timeless Amtico parquet, sleek matte black brassware, and refined porcelain tiles
  • Bi-fold doors leading out to your private south west facing garden
  • Car parking with EV charger included
  • Pre-wired for customer’s own Sky connection
  • En-suite and built-in wardrobe to principal bedroom
  • Family bathroom with modern fixtures and fittings
  • Open-plan kitchen/dining/living space 

Read more

Sales Suite Address: College Road, Clifton, Bristol, BS8 3HX.  Opening Times: Open daily, 10:00-17:30.

Out and about
The wider Bristol area has so much to offer in terms of retail, cultural and leisure opportunities. The open spaces of the Downs are perfect for outdoor enthusiasts, providing miles of verdant parkland within walking distance of your new home to explore on foot or by bike. Bristol’s very own Ashton Gate Stadium serves up a tempting array of sporting fixtures and pop concerts, and if you’re in the mood to explore further, the ultimate foodie destination – Wapping Wharf – awaits, offering a rich variety of culinary delights in a buzzing harbourside setting.

Clifton is home to some of Bristol’s most prestigious educational institutions, including Clifton College, Clifton High School, and the University of Bristol. Families will also find excellent primary schools nearby, as well as top-performing independent and state options for all age groups.

Transportation

  • Temple Meads Train station is only an 18 minute drive away, offering access into Swindon, Reading or London Paddington.
  • The Clifton Collection is conveniently located near the M5, making it conveniently accessible with a car. Bristol Airport is a 20 minute drive away.

The Hill Group
With a proud reputation as a five-star rated, Top 10 UK housebuilder*. The Hill Group is known for homes built with care, quality, and attention to detail. It’s all part of our promise to create homes where comfort, quality, and peace of mind come together.

Next Steps

Contact our sales team to arrange a viewing and visit our brand new show homes at The Clifton Collection.

Tenure:
Freehold
Service charge:
£225.00

Features

  • Brand new development in Bristol’s most desirable neighbourhood

  • 4 double Bedrooms

  • Three storey family living with stunning open plan kitchen

  • Separate study

  • A premium inclusive specification

  • Within walking distance to Clifton village and Clifton Downs

  • Car parking with EV charger included

Tenure:
Freehold
Service charge:
£225.00
:
:
:
Floor Plans
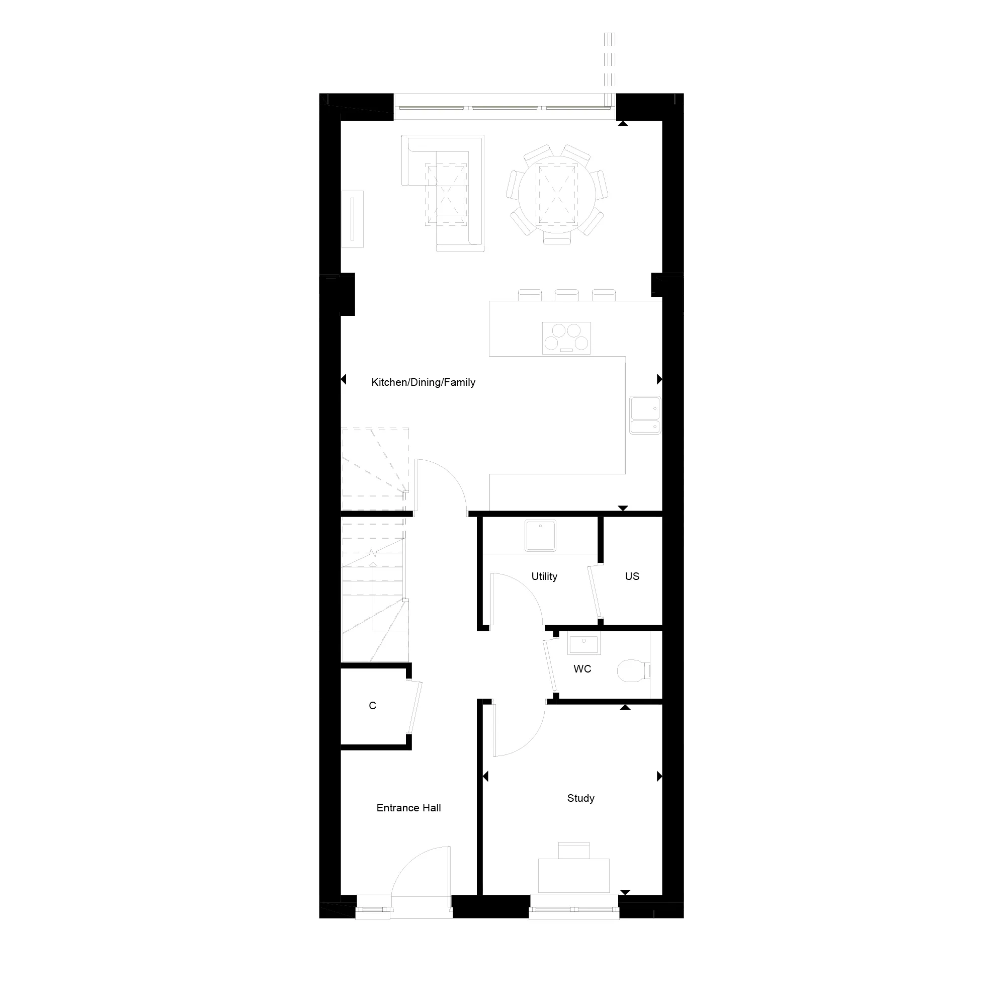
The Regancy Mews, Number 60 Ground floor
Kitchen / Dining / Family
6.30m
 x 
5.20m
20'8" x 17'1"
Study
3.05m
 x 
2.90m
10'0" x 9'6"
Image
The Regency Mews, Number 60 Ground Floor
The Regancy Mews, Number 60 First floor
Living Room
5.20m
 x 
3.65m
17'1" x 12'0"
Principal Bedroom
4.10m
 x 
2.90m
13'5" x 9'6"
Image
The Regancy Mews, Number 60 First floor
The Regancy Mews, Number 60 Second floor
Bedroom 2
5.20m
 x 
2.75m
17'1" x 9'0"
Bedroom 3
4.70m
 x 
2.95m
15'5" x 9'8"
Bedroom 4
3.65m
 x 
2.15m
12'0" x 7'1"
Image
The Regancy Mews, Number 60 Second floor
Site Plan
  • Available
Specifications

Kitchen

  • Matt finish shaker-style handleless units with contemporary black trim and soft-close to doors and drawers
  • Caesarstone worktop with matching upstand
  • Induction hob with built-in extractor
  • Integrated single oven
  • Integrated compact combi oven/microwave
  • Integrated fridge/freezer
  • Integrated wine cooler
  • Integrated dishwasher
  • Stainless steel undermounted sink with contemporary matt black mixer tap
  • LED feature lighting to wall units

Kitchen and utility room designs and layouts vary; please speak to our Sales Executives for further information.

Image
The Clifton Collection,  Regency Mews Kitchen, Dining, Living CGI
Image
Clifton Collection, The Regency Mews, External CGI
Image
The Clifton Collection,  Regency Mews Kitchen, Dining, Living CGI
Image
The Clifton Collection,  Regency Mews Kitchen, Dining, Living CGI

Utility Room

  • Matt finish shaker style handleless units with contemporary black trim and soft close to doors
  • Caesarstone worktops with matching upstand
  • Stainless steel undermounted sink with contemporary matt black mixer tap
  • Freestanding washing machine and condenser dryer (to cupboard where no utility room)

Kitchen and utility room designs and layouts vary; please speak to our Sales Executives for further information.

Image
Clifton Collection, The Regency Mews, External CGI
Image
The Clifton Collection,  Regency Mews Kitchen, Dining, Living CGI
Image
The Clifton Collection,  Regency Mews Kitchen, Dining, Living CGI
Image
The Clifton Collection,  Regency Mews Kitchen, Dining, Living CGI

Bathroom & En-Suite

Main Bathroom:

  • White sanitary ware with contemporary matt black brassware
  • Bath with shower over and glass shower screen
  • Bath panel to match vanity top
  • Feature mirror cabinet with LED lighting
  • Recessed shower shelf
  • Large format wall and floor tiles
  • Heated matt black towel rail

En-Suite:

  • White sanitary ware with contemporary matt black brassware
  • Low profile shower tray with glass shower door
  • Feature mirror cabinet with LED lighting (where layout allows)
  • Recessed shower shelf
  • Large format wall and floor tiles
  • Heated matt black towel rail
Image
Clifton Collection, The Regency Mews, External CGI
Image
The Clifton Collection,  Regency Mews Kitchen, Dining, Living CGI
Image
The Clifton Collection,  Regency Mews Kitchen, Dining, Living CGI
Image
The Clifton Collection,  Regency Mews Kitchen, Dining, Living CGI

Decorative Finishes

  • Timber staircase with carpeted treads and risers
  • White painted single panel moulded internal doors with contemporary matt black ironmongery
  • Built in hinged wardrobe or walk-in wardrobe with LED lighting to Principal Bedroom
  • Square cut grooved skirting and architrave
  • Walls painted in white emulsion
  • Smooth ceilings in white emulsion
Image
The Clifton Collection,  Regency Mews Kitchen, Dining, Living CGI
Image
The Clifton Collection,  Regency Mews Kitchen, Dining, Living CGI
Image
The Clifton Collection,  Regency Mews Kitchen, Dining, Living CGI
Image
Clifton Collection, The Regency Mews, External CGI

Floor Finishes

  • Amtico parquet flooring laid herringbone style throughout ground floor
  • Carpet to stairs, landings, upper floor living room, study, and all bedrooms
  • Large format tiles to bathroom and en-suite
Image
Clifton Collection, The Regency Mews, External CGI
Image
The Clifton Collection,  Regency Mews Kitchen, Dining, Living CGI
Image
The Clifton Collection,  Regency Mews Kitchen, Dining, Living CGI
Image
The Clifton Collection,  Regency Mews Kitchen, Dining, Living CGI

Doors & Windows

  • Composite front door with multi-point locking system
  • High efficiency double glazed aluminium timber composite windows with matching patio doors, bifold doors where shown on plans
  • Skylights where shown on floor plans
Image
The Clifton Collection,  Regency Mews Kitchen, Dining, Living CGI
Image
The Clifton Collection,  Regency Mews Kitchen, Dining, Living CGI
Image
Clifton Collection, The Regency Mews, External CGI
Image
The Clifton Collection,  Regency Mews Kitchen, Dining, Living CGI

Heating & Water

  • Underfloor heating to ground floor, radiators to upper floor
  • Heated towel rails to bathroom and en-suite
  • Air source heat pump
  • Hot water storage tank
Image
The Clifton Collection,  Regency Mews Kitchen, Dining, Living CGI
Image
Clifton Collection, The Regency Mews, External CGI
Image
The Clifton Collection,  Regency Mews Kitchen, Dining, Living CGI
Image
The Clifton Collection,  Regency Mews Kitchen, Dining, Living CGI

Electrical

  • Downlights to entrance hall, open-plan kitchen/ dining/family room, bathroom, en-suite, WC, utility room and principal bedroom
  • Pendant fittings to separate living room, study, landing and other bedrooms
  • LED feature lighting to wall units in kitchen
  • Selected sockets with integrated USB port
  • Shaver sockets to bathroom and en-suite
  • TV, BT and data points to selected locations
  • Openreach & Hyperoptic fibre connection to all properties for customer’s choice of broadband provider
  • Pre-wired for customer’s own Sky connection
  • External lighting to front and rear of property
  • Hard-wired smoke and heat detectors
  • Spur for customer’s own installation of security alarm panel
Image
Clifton Collection, The Regency Mews, External CGI
Image
The Clifton Collection,  Regency Mews Kitchen, Dining, Living CGI
Image
The Clifton Collection,  Regency Mews Kitchen, Dining, Living CGI
Image
The Clifton Collection,  Regency Mews Kitchen, Dining, Living CGI
Buying Calculators
Mortgage calculator

By putting in a few simple details we'll work out how much your monthly mortgage repayments could be.*

  • £

Your mortgage calculation

Deposit
Mortgage Required
Monthly Payments

*Hill do not provide mortgage advice, but our sales consultants will happily point you in the direction of an independent mortgage advisor who can help find the best deal for you.

Stamp Duty calculator

Our calculator provides a guide for how much Stamp Duty you will need to pay when purchasing your new property.*

  • £

Your Stamp Duty calculation

You pay % up to
You pay % up to
You pay % up to
You pay % up to £1,500,000
You pay % over £1,500,000
Total you pay

*First time buyers will not pay any stamp duty on property purchases below £300,000 with further relief available for transactions up to £500,000. Any property purchased over £500,000 by a first time buyer will not be eligible for SDLT relief and standard rates will apply. This calculator is provided as a guide only on how much Stamp Duty Land Tax (SDLT) you will need to pay in England and Northern Ireland. It assumes that you are a UK resident and the property is freehold and is for primary residential purposes. For more information, visit www.gov.uk/stamp-duty-land-tax.

Landscape Logo

The Clifton Collection Sales Suite

College Road
Clifton
Bristol
BS8 3HX
Get directions
Contact Sales Team
0117 454 6669
Opening hours
Sunday: 10:00-17:30
Monday: 10:00-17:30
Tuesday: Closed
Wednesday: Closed
Thursday: 10:00-17:30
Friday: 10:00-17:30
Saturday: 10:00-17:30

What 3 Words: ///secret.fats.error

The Clifton Collection

The Clifton Collection

Developments

    Locations

      Image
      HBF 5 Star Home Builders Federation 2025
      Image
      Hill - What House - Three Times Housebuilder Of The Year
      Image
      CIBSE 2020
      Image
      NHBC Awards 2020