The Icon, Number 8

Cambridge, Cambridgeshire, CB3 1BJ Directions and opening times

  • £1,024,950
  • 3
     bedrooms
  • 2
     bathrooms

The Icon The Icon, Number 8

Jump to:

Development Jump Navigation

Image
Penthouse Show Apartment Living Area

Created for Living

The Icon, Number 8

An exquisite three bedroom second-floor apartment in Eddingtons prestigious Icon project, featuring a generous open plan living space with separate dining and eating areas, three double bedrooms and two bathrooms. The perfect space to suit any lifestyle. 

Property Highlights

  • 1200 sq ft
  • Three double bedrooms, including a principal bedroom with fitted wardrobe and en-suite
  • Contemporary bathrooms with heated chrome towel rails and , feature mirrored vanity unit with LED lighting
  • Engineered timber wood herringbone pattern flooring
  • Secure underground parking with access to EV charging
  • Private terrace with views towards the Cricket Pitch
  • Spacious open-plan kitchen/dining/living area
  • Bespoke German kitchen with Miele integrated appliances and Caesarstone worktops
  • Underfloor heating throughout 

Sales Suite Address: Eddington Avenue, Cambridge, CB3 1SE. Opening Times: Open Daily, 10am-5:30pm

Out and about

The Icon is set within the thriving community of Eddington, a highly sustainable new neighbourhood, conveniently located just 1.9 miles from Cambridge city centre. Eddington is a place in its own right, with all the elements needed for a community to thrive. These include a hotel, school, nursery, shops, market square, community centre, sports facilities and over 50 hectares of open space for people to enjoy, meet each other and make connections.

Within reach of the development itself, The Icon boasts excellent facilities, including:

  • University of Cambridge Primary School
  • Market Square with shops and supermarket
  • Storey’s field centre and nursery
  • Chesterton Community College
  • Five Acres Park
  • The University of Cambridge 

Venture further afield and visit Cambridge City Centre, where you find numerous shopping centres, boutiques, independent stores, a bustling market and plenty of places to eat, drink and meet. The famous Cambridge Market Square sells a huge range of goods, while the long-running All Saints Craft Market is the place to pick up unique and handmade items such as jewellery, pottery, photographs and paintings.

Transportation

  • Cambridge railway station is just an 18 minute cycle where you will find direct trains to central London, reaching the Capital  in less than an hour.
  • For international travel, Stansted Airport is just a 30 minute train journey.
  • Cycling and pedestrian routes weave their way through Knights Park and across Eddington, with cycle lanes taking you into Cambridge city centre.
  • The M11 motorway is just 4-minutes from The Icon, connecting you to both the M25 and London.

Next Steps

Contact our sales team to arrange a viewing and visit your dream home at the award winningThe Icon development. 

Tenure:
Leasehold
Service charge:
£5045.31
Council tax band:
TBC
Time remaining on lease:
250 years

Features

  • Three double bedroom, second floor apartment - ready to move into.

  • Exclusive high-end specification throughout

  • Built by an award winning 5-star housebuilder

  • Private terrace with stunning views over Eddington cricket pitch

  • Concierge service- open 7 days a week

  • Residents rooftop garden and tranquil architect designed atrium

  • Eddington market Square, shops, restaurants and other amenities within walking distance

Tenure:
Leasehold
Service charge:
£5045.31
:
Council tax band:
TBC
Time remaining on lease:
250 years
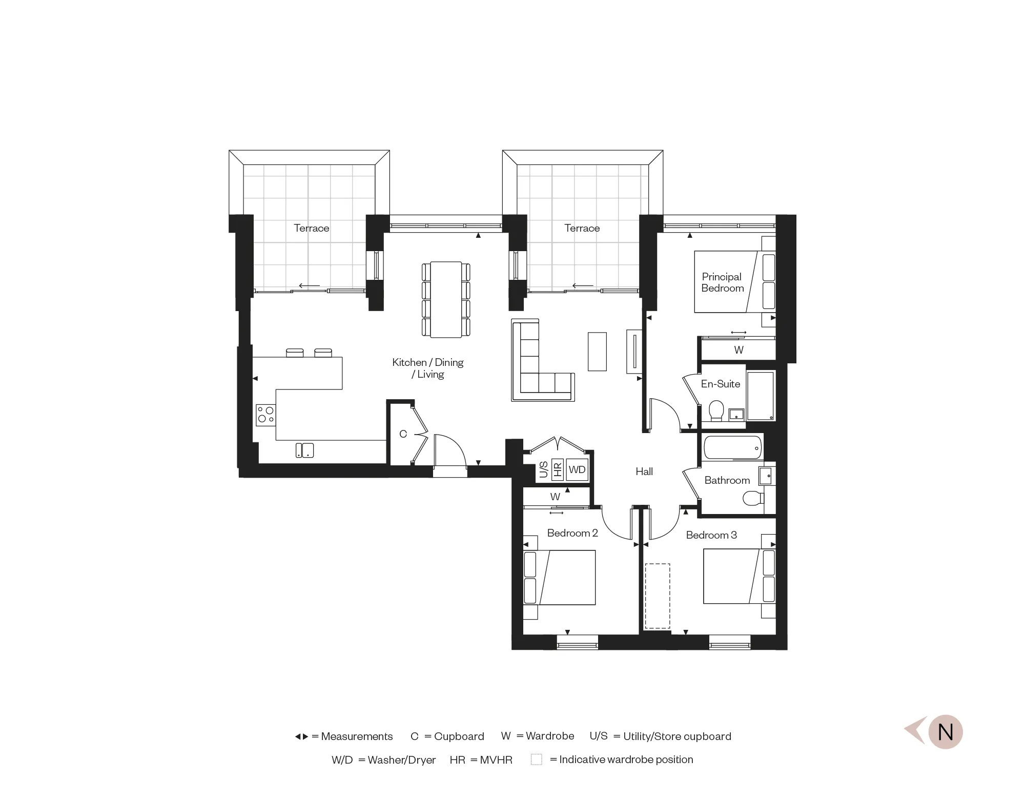
Floor Plans
Apartment 8, The Icon Floorplan
Kitchen/Dining/Living
10.60m
 x 
6.30m
34'9" x 20'8"
Principal Bedroom
3.50m
 x 
5.30m
11'6" x 17'5"
Bedroom 2
3.15m
 x 
3.40m
10'4" x 11'2"
Bedroom 3
3.60m
 x 
3.40m
11'10" x 11'2"
Terrace 1
3.60m
 x 
3.40m
11'10" x 11'2"
Terrace 2
3.60m
 x 
3.40m
11'10" x 11'2"
Image
The Icon: Plot 8 Floorplan
Site Plan
Specification

Kitchen

  • Matt finish handleless units with contemporary black trim and soft close to doors and drawers
  • Caesarstone worktop with matching upstand and splashback behind hob (where applicable)
  • Induction hob
  • Integrated single oven
  • Integrated microwave
  • Integrated compact combi oven/ microwave to studio
  • Integrated dishwasher • Integrated fridge/freezer
  • Integrated cooker hood or ceiling hood where hob on island or peninsula
  • Stainless steel undermounted sink with contemporary matt black mixer tap
  • LED feature lighting to wall units
  • Integrated pull out recycling bin
  • Washer/dryer (freestanding in  hallway cupboard)
Image
The Icon, Number 89 - Kitchen
Image
The Icon Rooftop Garden
Image
The Icon, Number 89 - Principal Bedroom
Image
The Icon, Number 89 - Bathroom

Bathroom

Bathroom 

  • White sanitaryware with contemporary matt black brassware
  • Bath with shower over and glass screen
  • Feature mirror cabinet and shelf  with LED lighting 
  • Recessed shower shelf
  • Bath panel to match vanity top
  • Large format wall and floor tiles
  • Heated matt black towel rail

En-suite/Shower room 

  • White sanitaryware with contemporary matt black brassware 
  • Low profile shower tray with glass shower door
  • Feature mirror cabinet and shelf with LED lighting
  • Recessed shower shelf
  • Large format wall and floor tiles
  • Heated matt black towel rail
Image
Icon Show Apartment - Kitchen Spec
Image
The Icon Show Apartment - Living Room Spec
Image
Icon Two Bedroom Show Apartment - Principal bedroom 2
Image
Icon Two Bedroom Show Apartment - Bathroom

Finishes

Decorative Finishes

  • Front entrance door with multi-point locking system 
  • High efficiency triple glazed aluminium timber composite windows
  • Timber internal staircase with carpeted treads and risers to duplex apartments 
  • White painted flush internal doors with contemporary matt black ironmongery 
  • Built in mirrored wardrobe with  sliding doors and LED lighting  to principal bedroom 
  • Square cut skirting and architrave
  • Walls painted in white emulsion
  • Smooth ceilings in white emulsion

Floor Finishes

  • Amtico flooring to entrance hall, kitchen/dining/living room and  bedroom area to studio
  • Carpet to bedrooms and stairs  to duplex apartments
  • Large format tiles to bathroom/shower room and en-suite

External Finishes

  • Porcelain tiles to terrace 
  • Exterior treatments comprise white and buff facing bricks with biodiverse green roofs
Image
Icon Show Apartment - Kitchen Spec
Image
The Icon Show Apartment - Living Room Spec
Image
Icon Two Bedroom Show Apartment - Principal bedroom 2
Image
Icon Two Bedroom Show Apartment - Bathroom

Electrical

  • Downlights to entrance hall, kitchen/dining/ living room, bathroom/shower room, en-suite and principal bedroom
  • Pendant fittings to other bedrooms • LED feature lighting to wall units in kitchen
  • Selected sockets with integrated USB port
  • Shaver sockets to bathroom/shower room and en-suite
  • TV, BT and data points to selected locations 
  • BT & Virgin fibre connection to all properties for customer’s choice of broadband provider
  • Pre-wired for customer’s own  Sky Q connection
  • Video entry system to every apartment, linked to main entrance door, where accessed off communal area
  • External lighting to terrace • Hard-wired smoke and heat detectors
  • Sprinkler system to all apartments
  • Spur for customer’s own installation of security alarm panel
Image
Icon Show Apartment - Kitchen Spec
Image
The Icon Show Apartment - Living Room Spec
Image
Icon Two Bedroom Show Apartment - Principal bedroom 2
Image
Icon Two Bedroom Show Apartment - Bathroom

Heating & Water

  • Underfloor heating throughout  each apartment
  • Heated matt black towel rails to bathroom/shower room and en-suite
  • District heating, metered to each property
Image
Icon Show Apartment - Kitchen Spec
Image
The Icon Show Apartment - Living Room Spec
Image
Icon Two Bedroom Show Apartment - Principal bedroom 2
Image
Icon Two Bedroom Show Apartment - Bathroom

Parking & Communal Areas

  • Parking space in basement car park 
  • Electric car charging points available for communal use
  • Fob controlled access system to entrance lobby
  • Lift access to all floors
  • Cycle storage space at basement or podium level
  • Post boxes provided for all apartments within communal entrance lobby (where apartment is accessed off communal area)
Image
Icon Show Apartment - Kitchen Spec
Image
The Icon Show Apartment - Living Room Spec
Image
Icon Two Bedroom Show Apartment - Principal bedroom 2
Image
Icon Two Bedroom Show Apartment - Bathroom

General

  • 10 year NHBC warranty
  • 250 year lease 
  • A service charge will be payable for the maintenance of the shared facilities and communal areas
Image
Icon Show Apartment - Kitchen Spec
Image
The Icon Show Apartment - Living Room Spec
Image
Icon Two Bedroom Show Apartment - Principal bedroom 2
Image
Icon Two Bedroom Show Apartment - Bathroom
Buying Calculators
Mortgage calculator

By putting in a few simple details we'll work out how much your monthly mortgage repayments could be.*

  • £

Your mortgage calculation

Deposit
Mortgage Required
Monthly Payments

*Hill do not provide mortgage advice, but our sales consultants will happily point you in the direction of an independent mortgage advisor who can help find the best deal for you.

Stamp Duty calculator

Our calculator provides a guide for how much Stamp Duty you will need to pay when purchasing your new property.*

  • £

Your Stamp Duty calculation

You pay % up to
You pay % up to
You pay % up to
You pay % up to £1,500,000
You pay % over £1,500,000
Total you pay

*First time buyers will not pay any stamp duty on property purchases below £300,000 with further relief available for transactions up to £500,000. Any property purchased over £500,000 by a first time buyer will not be eligible for SDLT relief and standard rates will apply. This calculator is provided as a guide only on how much Stamp Duty Land Tax (SDLT) you will need to pay in England and Northern Ireland. It assumes that you are a UK resident and the property is freehold and is for primary residential purposes. For more information, visit www.gov.uk/stamp-duty-land-tax.

Landscape Logo

Register your interest

Contact us today to find out more about this exciting new collection of 1, 2 & 3 bedroom homes and arrange a viewing of our beautiful show homes.

The Icon Sales Suite

Eddington Avenue
Cambridge
Cambridgeshire
CB3 1BJ
Get directions

The Icon Sales Suite

Cambridgeshire
Contact our sales team
01223 657386
Opening hours
Sunday: 10:00-17:30
Monday: 10:00-17:30
Tuesday: 10:00-17:30
Wednesday: 10:00-17:30
Thursday: 10:00-17:30
Friday: 10:00-17:30
Saturday: 10:00-17:30

The Icon sales suite at The Icon building is open for viewings Friday to Monday, 10am to 5.30pm. The Knights Park Sales Suite is open daily 10am to 5.30pm.

What 3 Words: ///bits.globe.value

The Icon

The Icon

Developments

    Locations

      Image
      HBF 5 Star Home Builders Federation 2025
      Image
      Hill - What House - Three Times Housebuilder Of The Year
      Image
      CIBSE 2020
      Image
      NHBC Awards 2020