The Empire Apartments, Apartment 896

Dagenham, London, RM9 6PE Directions and opening times

  • £377,000
  • 2
     bedrooms
  • 2
     bathrooms

Dagenham Green The Empire, Apartment 896

Jump to:

Development Jump Navigation

Development Jump Navigation

Image
dining room

dining room

Created for Living

The Empire, Apartment 896

Ready to move in - 5th floor apartment, 21 minutes from Zone 1, offering a private balcony with uninterrupted park views. Reserve this January for a complimentary AI fitness Magic Mirror^.

Apartment 896 is a 5th floor 767sqft 2-bedroom 2-bathroom West-facing home in The Empire. 

Property Highlights

  • Two double bedrooms including a principal bedroom with en-suite and fitted wardrobes
  • Ample storage solutions with a spacious utility cupboard, home to a washer/dryer
  • Underfloor heating throughout each apartment
  • Lift access to all floors
  • Pre-wired BT & Hyperoptic fibre connection as well as Sky Q Connection
  • Modern kitchen with integrated Bosch appliances

Read more

Sales Suite Address: Dagenham, London, RM9 6PE. Opening Times: Monday - Sunday, 10:00 - 17:30.

Out and about

Dagenham Green boasts a host of resident's amenities, including a concierge, gardens, a park and boardwalk, shops, a school, a social hub, cafés and 5-acres of green space.

Within reach of the development itself, Dagenham Green boasts excellent facilities, including:

  • Merrielands Retail Park – home to leading home wear brand and your local PureGym
  • Dagenham Leisure Park – watch the latest films at Vue Cinema Dagenham or grab a game of bowling!
  • ABC pre-school
  • Goresbrook Park – here you’ll find a skate park, basketball and 5-a-side courts plus 9.5 acres of greenery
  • Old Dagenham Park – an informal recreation area with outdoor bowling, a wheel park and tennis courts
  • Marsh Green Primary School – Ofsted rated ‘Good’
  • Dagenham Park Church of England Secondary School – Ofsted rated ‘Good’
  • Eastbrook Studios – London’s largest production campus for video and film

Westfield Stratford City, with 300+ retailers, is 22 minutes by train from Dagenham Dock, with central London just a little further for shopping, culture and dining.

Transportation

Dagenham Dock Station is a 2-minute walk, with central London just 21 minutes away, and Canary Wharf in 24. The District line is also within easy reach via Dagenham Heathway.

Next Steps

Contact our sales team to arrange a tour of our Show Apartments and discover how life at Dagenham Green could take shape.

*Deposit Boost - Offer is subject to terms and conditions, up to the value of 5% purchase price, selected plots only. The offer cannot be used in conjunction with any other offer. Valid for a limited time. Please contact a member of our sales team for more information. 

^T&C's apply. Reserve your new home before 31st January and receive a Magic Mirror upon completion. Available on selected homes only. Speak to our sales team for more information. Offer valid while stock lasts. 

 

 

Tenure:
Leasehold
Service charge:
£3007.00
Time remaining on lease:
999 years

Features

  • Approx. 767sqft.

  • Never miss a parcel with our on-site concierge

  • Private balcony with dual aspect views

  • 24 minutes to Canary Wharf from Dagenham Dock Station

  • Residents car club

  • 21 minutes to Fenchurch Street

  • Need help with your deposit? Speak with our team about our 5% deposit boost*.

  • Bring the gym home, receive a complimentary AI fitness Magic Mirror when you reserve this month^

*Deposit Boost - Offer is subject to terms and conditions, up to the value of 5% purchase price, selected plots only. The offer cannot be used in conjunction with any other offer. Valid for a limited time. Please contact a member of our sales team for more information. 

^T&C's apply. Reserve your new home before 31st January and receive a Magic Mirror upon completion. Available on selected homes only. Speak to our sales team for more information. Offer valid while stock lasts. 

 

Tenure:
Leasehold
Service charge:
£3007.00
:
:
Time remaining on lease:
999 years
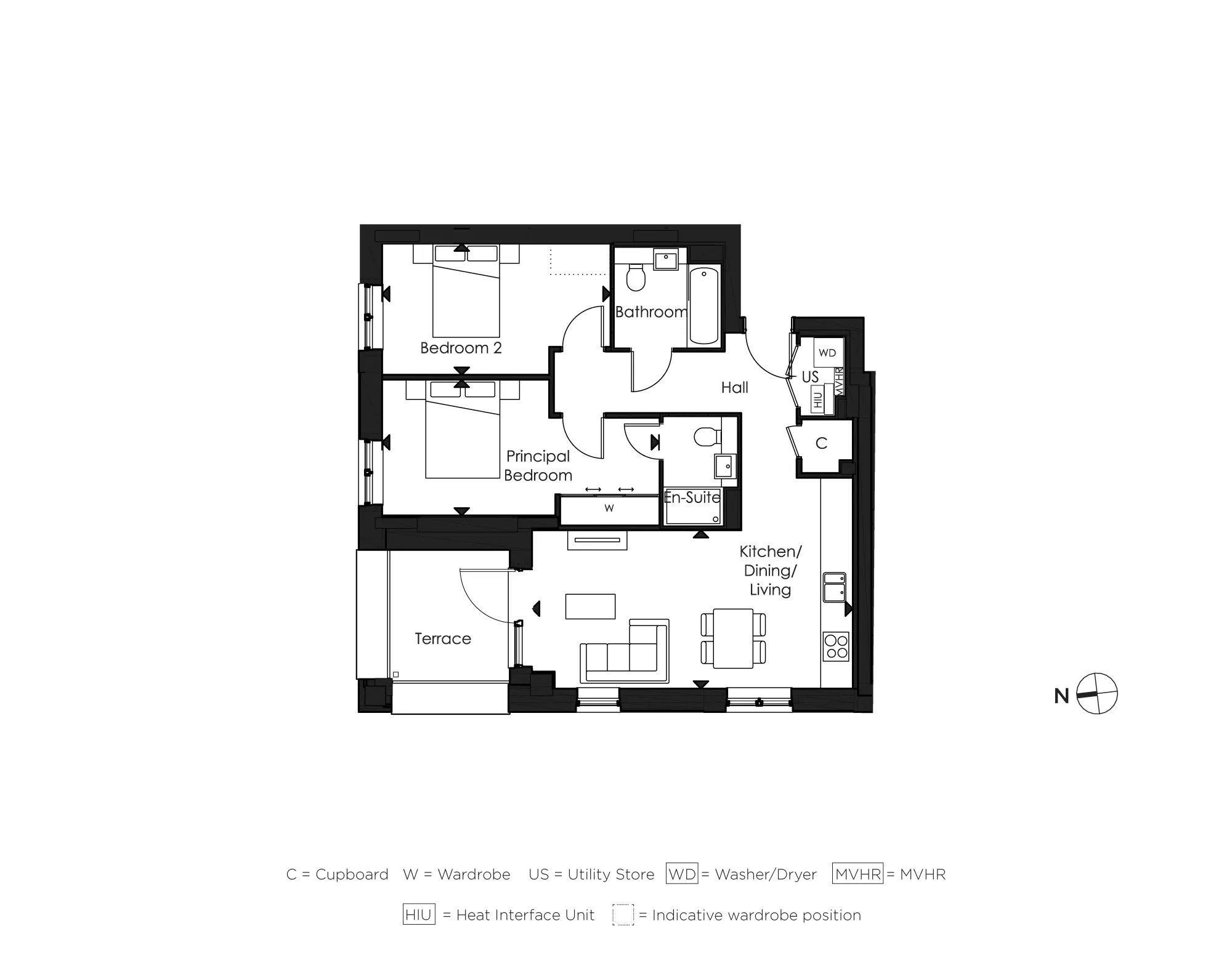
Floor Plans
The Empire, Apartment 896 Floorplan
Kitchen / Dining / Living
3.20m
 x 
6.50m
10'6" x 21'4"
Principal Bedroom
2.75m
 x 
5.60m
9'0" x 18'4"
Bedroom 2
2.65m
 x 
4.65m
8'8" x 15'3"
Image
Dagenham_Green_Floorplans_896
Site Plan
Buying Calculators
Mortgage calculator

By putting in a few simple details we'll work out how much your monthly mortgage repayments could be.*

  • £

Your mortgage calculation

Deposit
Mortgage Required
Monthly Payments

*Hill do not provide mortgage advice, but our sales consultants will happily point you in the direction of an independent mortgage advisor who can help find the best deal for you.

Stamp Duty calculator

Our calculator provides a guide for how much Stamp Duty you will need to pay when purchasing your new property.*

  • £

Your Stamp Duty calculation

You pay % up to
You pay % up to
You pay % up to
You pay % up to £1,500,000
You pay % over £1,500,000
Total you pay

*First time buyers will not pay any stamp duty on property purchases below £300,000 with further relief available for transactions up to £500,000. Any property purchased over £500,000 by a first time buyer will not be eligible for SDLT relief and standard rates will apply. This calculator is provided as a guide only on how much Stamp Duty Land Tax (SDLT) you will need to pay in England and Northern Ireland. It assumes that you are a UK resident and the property is freehold and is for primary residential purposes. For more information, visit www.gov.uk/stamp-duty-land-tax.

Landscape Logo

Dagenham Green Sales Suite

Kent Avenue
Dagenham
London
RM9 6PE
Get directions
Book your viewing
02039061953
Opening hours
Sunday: 10:00-17:30
Monday: 10:00-17:30
Tuesday: 10:00-17:30
Wednesday: 10:00-17:30
Thursday: 10:00-17:30
Friday: 10:00-17:30
Saturday: 10:00-17:30

What 3 Words: ///tamed.cheer.lance

Dagenham Green

Dagenham Green

Developments

    Locations

      Image
      HBF 5 Star Home Builders Federation 2025
      Image
      Hill - What House - Three Times Housebuilder Of The Year
      Image
      CIBSE 2020
      Image
      NHBC Awards 2020