Number 87 The Elms

Croxley Green, Rickmansworth, WD3 3JJ Directions and opening times

  • £799,950
  • 3
     bedrooms
  • 2
     bathrooms

Millside Grange The Elms, Number 87

Jump to:

Development Jump Navigation

Image
The Elms External

Created for Living

The Elms, Number 87

A three-bedroom detached show house offering spacious open-plan layout and modern features to suit your lifestyle. This house has expansive open-plan living over two floors with elegant style and modern comfort for growing families.

Property Highlights

  • Three bedrooms including a principal bedroom with bespoke fitted wardrobes and en-suite
  • Ample storage solutions for a clutter free environment
  • Large private landscaped garden
  • Driveway parking for two cars
  • Underfloor heating to ground floor, plus flooring included throughout
  • Pre-wired BT & Virgin fibre connection as well as Sky Q connection

Read more

Sales Suite Address: Croxley Green, Rickmansworth, WD3 3JJ.

Out and about

Millside Grange offers rolling countryside on your doorstep and an excellent range of local amenities. It boasts idyllic village living, while keeping you connected to central London and Watford, making it the perfect choice for those seeking a balanced lifestyle. The village of Croxley Green offers countryside living at its finest. Enjoy charming shops, cosy pubs and restaurants, a pharmacy, bank, post office and a community hub, all situated in and around the village.

Within reach of the development itself, Millside Grange boasts excellent facilities, including:

  • The Grove Hotel and Golf Club
  • Atria, Watford
  • Little Green Junior School
  • Miller and Carter
  • Watford Leisure Centre
  • M&S Simply Foods
  • Rickmansworth Secondary School
  • Waitrose

Venturing further afield, you will find Rickmansworth and Watford where you will discover the busier city life. Whether you’re looking to shop, dine or relax, Watford and Rickmanworth have you covered. With vibrant entertainment venues, to shopping centres with over 140 shops. 

Transportation

  • Croxley Underground station is a four-minute drive and Ricksmanworth Underground station is a six-minute drive away, providing quick connections into Central London.
  • The M25 is only an eight-minute drive away, while the M1, which takes you into London, is just a twelve-minute drive.
  • This development is also a 25 minute drive from London Heathrow Airport for convenient national travel.

Next Steps

Contact our sales team to arrange a viewing and visit your dream home at the award winning Millside Grange development. 

 *5% deposit boost available T&C's apply, available to selected homes only. Speak to the sales team for further information.​​​​​​

Features

  • Stunning 3 Bedroom Show Home – Sold as Seen with Furniture.

  • Detached home

  • Three bedrooms, including a principal bedroom with bespoke fitted wardrobes and en-suite

  • Fully integrated kitchen

  • Caesarstone worktops, carpets / amtico flooring

  • Spacious open-plan kitchen / dining / living room across the entire ground floor with bifold doors out to landscaped garden

  • Driveway parking for two cars

  • Excellent transport links to M25 and Croxley Station

  • Within walking distance to excellent local schools

:
:
:
:
:
Floor Plans
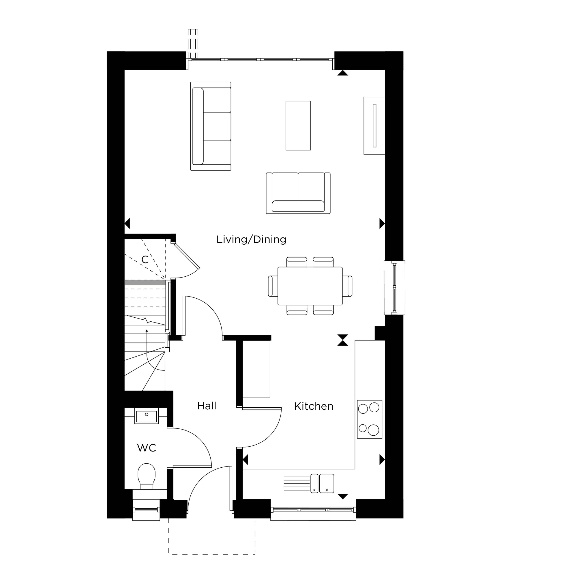
Ground Floor
Kitchen
3.35m
 x 
3.05m
11'0" x 10'0"
Living/Dining
5.55m
 x 
5.50m
18'3" x 18'1"
Image
The Elms_Plot 4_GF
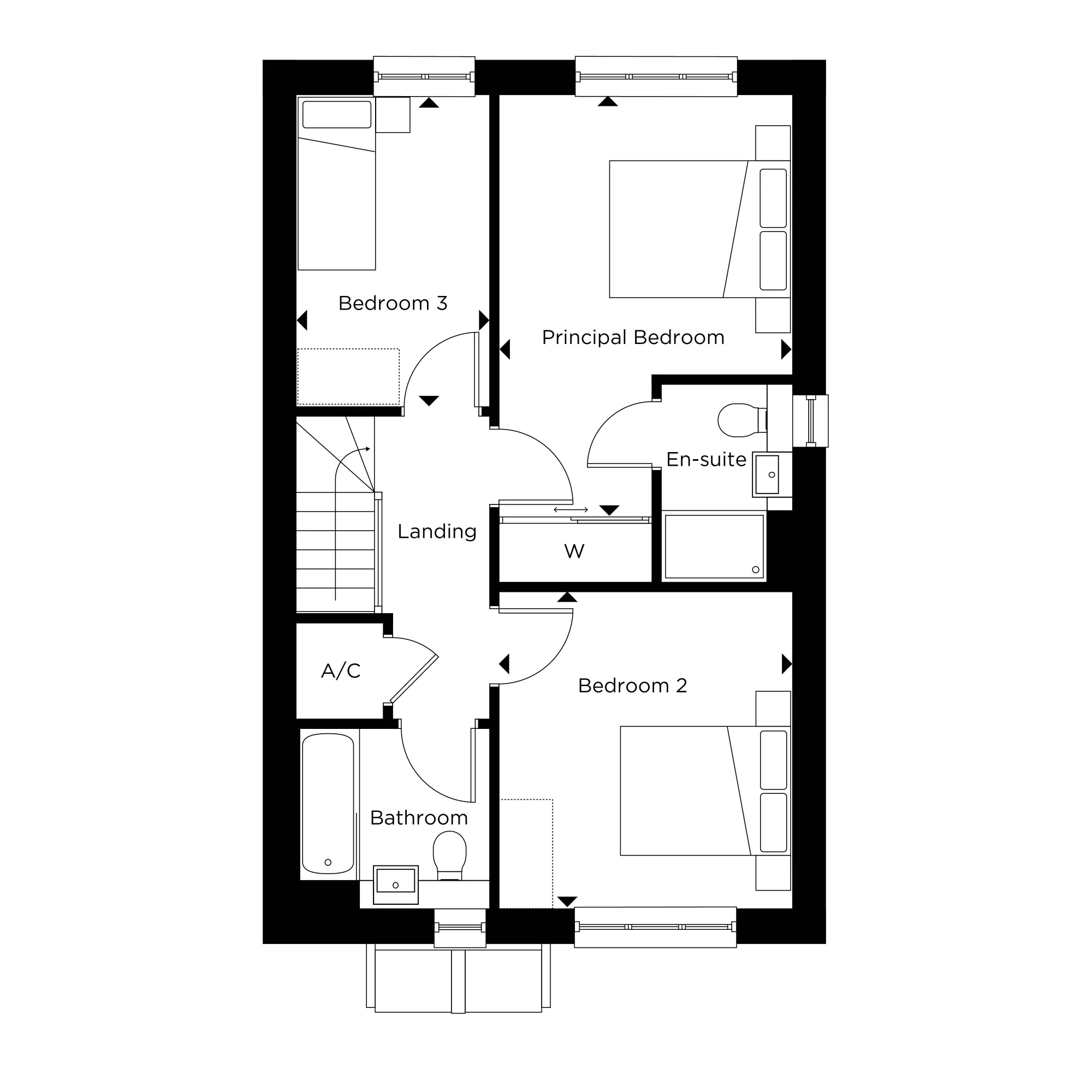
First Floor
Principal Bedroom
4.65m
 x 
3.25m
15'3" x 10'8"
Bedroom 2
3.45m
 x 
3.25m
11'4" x 10'8"
Bedroom 3
3.40m
 x 
2.15m
11'2" x 7'1"
Image
The Elms at Millside Grange First Floor
Site Plan
  • Available
  • Reserved
  • Sold
Specifications

Kitchen & Utility

  • Matt finish shaker-style kitchen units with soft close to doors and drawers
  • Caesarstone worktops with matching upstand and splashback behind hob
  • Induction hob
  • Integrated single oven
  • Integrated microwave
  • Integrated fridge/freezer
  • Integrated dishwasher
  • Integrated cooker hood
  • Stainless steel under-mounted sink with contemporary brushed steel mixer tap
  • LED feature lighting to wall units
  • Integrated washer/dryer

Kitchen designs and layouts vary; please speak to our Sales Executives for further information. We are unable to accommodate any individual changes, additions or amendments to the specification, layout or plans to any individual home. Please note that it may not be possible to obtain the products as referred to in the specification; in such cases, a similar alternative will be provided. Hill reserve the right to make these changes as required.

Image
Millside Grange
Image
Millside Grange
Image
Millside Grange
Image
Millside Grange

Bathroom & En-suite

  • Bath with shower over and glass screen 
  • Bath panel to match vanity top
  • Low profile shower tray with glass shower door to en-suite
  • Large format wall and floor tiles to bathroom & en-suite
  • Heated chrome towel rail to bathroom & en-suite 
  • Framed feature mirror with shelf to match vanity top (where layout allows) to en-suites
Image
Millside Grange
Image
Millside Grange
Image
Millside Grange
Image
Millside Grange

Heating & Water

  • Underfloor heating to ground floor, radiators to upper floor
  • Heated chrome towel rails to bathroom and en-suite
  • Air source heat pump
  • Hot water storage tank
Image
Millside Grange
Image
Millside Grange
Image
Millside Grange
Image
Millside Grange

Electrical

  • Downlights to entrance hall, kitchen, open-plan kitchen/living/dining area, bathroom, en-suite and WC
  • Pendant fittings to landing and bedrooms
  • LED feature lighting to wall units in kitchen
  • Shaver sockets to bathroom and en-suite
  • TV, BT and data points to selected locations
  • BT & Hyperoptic fibre connection to all properties for customer’s choice of broadband provider
  • Pre-wired for customer’s own Sky Q connection
  • External lighting to front and rear of property
  • Hard-wired smoke and heat detectors
  • Spur for customer’s own installation of security alarm panel
  • Provision for customer's own electric car charging point

 

Image
Millside Grange
Image
Millside Grange
Image
Millside Grange
Image
Millside Grange

Finishes

  • Timber staircase with carpeted treads and risers
  • White painted single panel moulded internal doors with contemporary dual finish ironmongery
  • Built-in mirrored wardrobe with sliding doors to principal bedroom 
  • Square cut skirting and architrave
  • Walls painted in white emulsion
  • Smooth ceilings in white emulsion
  • Amtico flooring throughout ground floor
  • Carpet to stairs, landing and bedrooms
  • Large format tiles to bathroom and en-suite
  • Composite front door with multi-point locking system
  • High-efficiency double-glazed uPVC windows
  • Aluminium bi-fold patio doors 
Image
Millside Grange
Image
Millside Grange
Image
Millside Grange
Image
Millside Grange

Additional Information

  • 10 Year NHBC Warranty 

A Management Company has been formed at Millside Grange and will be responsible for the management and maintenance of the shared services and external communal areas of the of the development, including the green open spaces, play areas, un-adopted estate roads and footpaths. All homeowners will automatically be made members of the Management Company when they purchase a home at Millside Grange. A managing agent has been appointed on behalf of the Management Company and will take on the day-to-day management and maintenance responsibilities. All homeowners will be required to pay a contribution towards the maintenance of the development, which will be collected by the managing agent in the form of an annual estate charge.

Image
Millside Grange
Image
Millside Grange
Image
Millside Grange
Image
Millside Grange
Buying Calculators
Mortgage calculator

By putting in a few simple details we'll work out how much your monthly mortgage repayments could be.*

  • £

Your mortgage calculation

Deposit
Mortgage Required
Monthly Payments

*Hill do not provide mortgage advice, but our sales consultants will happily point you in the direction of an independent mortgage advisor who can help find the best deal for you.

Stamp Duty calculator

Our calculator provides a guide for how much Stamp Duty you will need to pay when purchasing your new property.*

  • £

Your Stamp Duty calculation

You pay % up to
You pay % up to
You pay % up to
You pay % up to £1,500,000
You pay % over £1,500,000
Total you pay

*First time buyers will not pay any stamp duty on property purchases below £300,000 with further relief available for transactions up to £500,000. Any property purchased over £500,000 by a first time buyer will not be eligible for SDLT relief and standard rates will apply. This calculator is provided as a guide only on how much Stamp Duty Land Tax (SDLT) you will need to pay in England and Northern Ireland. It assumes that you are a UK resident and the property is freehold and is for primary residential purposes. For more information, visit www.gov.uk/stamp-duty-land-tax.

Similar Properties

Landscape Logo

Millside Grange Sales Suite

Little Green Lane
Croxley Green
Rickmansworth
WD3 3JJ
Get directions
Register your interest
01923 920442
Opening hours
Sunday: 10:00-17:30
Monday: 10:00-17:30
Tuesday: 10:00-17:30
Wednesday: 10:00-17:30
Thursday: 10:00-17:30
Friday: 10:00-17:30
Saturday: 10:00-17:30

Millside Grange

Millside Grange

Developments

    Locations

      Image
      HBF 5 Star Home Builders Federation 2025
      Image
      Hill - What House - Three Times Housebuilder Of The Year
      Image
      CIBSE 2020
      Image
      NHBC Awards 2020